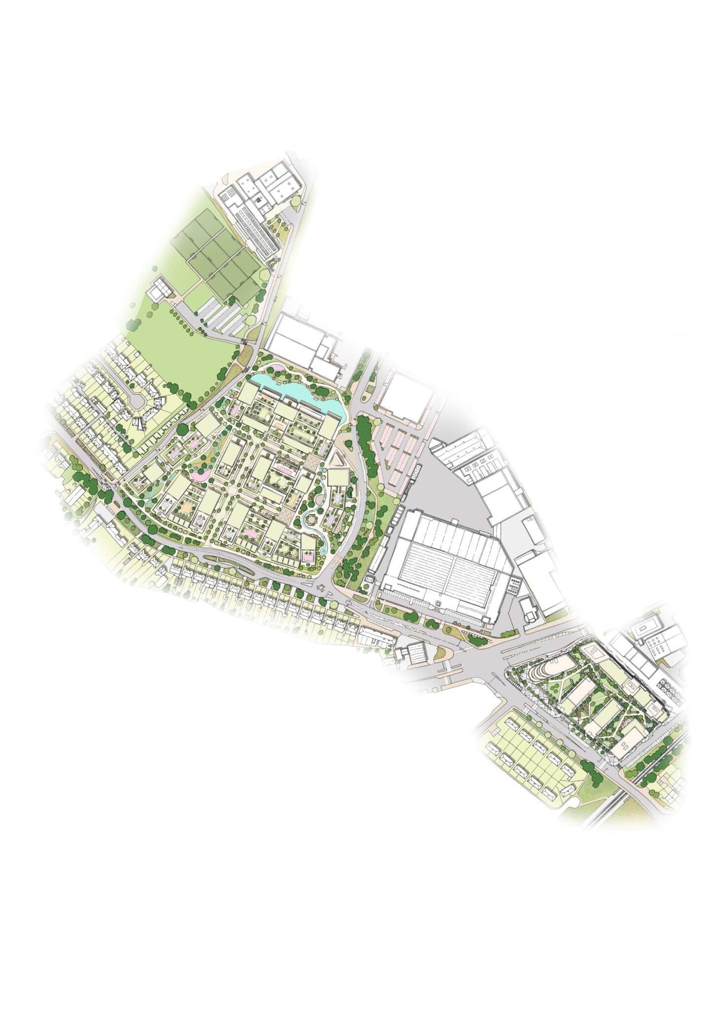
Our masterplan for Homebase Brentford and Tesco Osterley
Our vision for Syon Gardens & Osterley Place is to celebrate the natural environment and create beautiful new homes, gardens and water gardens with new meadows and environmental landscaping for the whole community to enjoy. Integrating a brand new Tesco Extra superstore alongside retail and community space, the masterplan will deliver up to 2,150 homes including up to 750 affordable homes.
Local Area Enhancements
2,150 new homes
750 affordable homes
New Tesco Extra store on the Golden Mile
£2.3m+ dedicated highway contribution
Green sustainability hub to promote clean transport modes
50,000 sqft of mixed uses including GP healthcare & community hub
£36M CIL & S106 investment + relationships with local business
Seven acres of publicly accessible green space & new civic square
On-site residential CO2 reductions (80% by 2030)
200 apprentices for local young people
Project Gallery







